過去の施工例
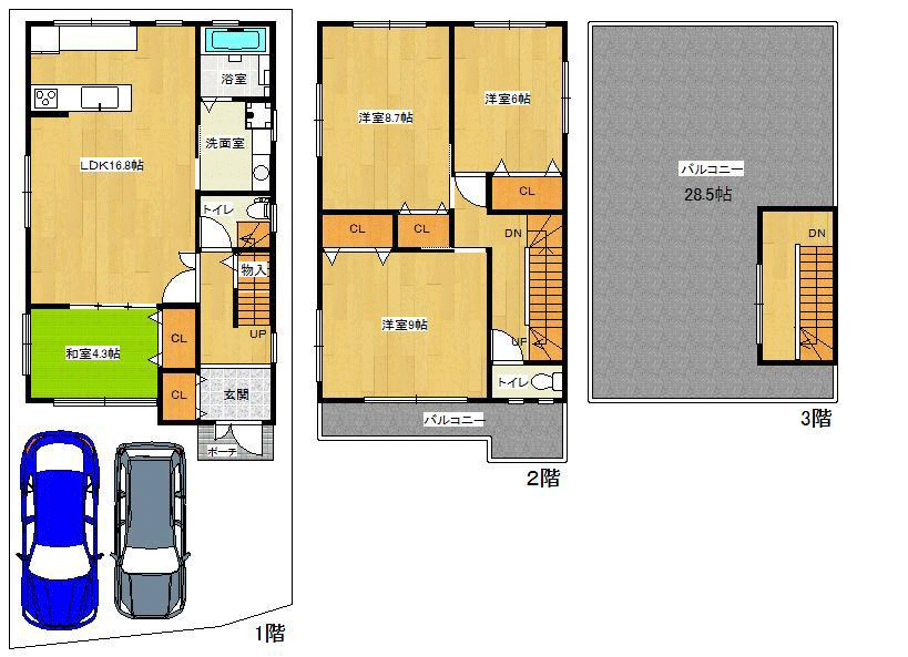
間取
売出中物件の室内
リビング
リビングと和室
和室
キッチン
スカイプロムナード
洗面室
洋室
モデルルーム動画サイト↓
問い合せ先
フリーダイヤル : 0120-326-146
担 当 : 西 原
携 帯 : 090-1077-8088
区画図
物件資料です。↓クリック
物件資料 宮町4丁目
●新築一戸建
●価格/3,680万円
●所在地/八尾市宮町4丁目108-14(地番)
●交通/近鉄大阪線「久宝寺口」駅 より 徒歩7分
●土地面積/100.02㎡(約30.25坪)
●延床面積/113㎡(1階53.87㎡ 2階52.65㎡ スカイプロムナード 46.17㎡)
●構造/木造陸屋根付き2階建
●地目/宅地
●用途地域/準工業地域
●建ペイ率・容積率/60%・200%
●前面道路/東側 道路幅:約 4.4m
接道面:公道に約 6.89m
●引渡し/相談
●取引態様/仲介
周辺環境施設はこちらです↓br>
br>
地図クリック↓
問い合せ先
フリーダイヤル : 0120-326-146
担 当 : 西 原
携 帯 : 090-1077-8088
宅地建物取引業者
免許番号:大阪府知事(2)第53208号
売出中物件の室内
リビング
リビングと和室
和室
キッチン
スカイプロムナード
洗面室
洋室
モデルルーム動画サイト↓
問い合せ先
フリーダイヤル : 0120-326-146
担 当 : 西 原
携 帯 : 090-1077-8088
区画図
物件資料です。↓クリック
物件資料 宮町4丁目
●新築一戸建
●価格/3,680万円
●所在地/八尾市宮町4丁目108-14(地番)
●交通/近鉄大阪線「久宝寺口」駅 より 徒歩7分
●土地面積/100.02㎡(約30.25坪)
●延床面積/113㎡(1階53.87㎡ 2階52.65㎡ スカイプロムナード 46.17㎡)
●構造/木造陸屋根付き2階建
●地目/宅地
●用途地域/準工業地域
●建ペイ率・容積率/60%・200%
●前面道路/東側 道路幅:約 4.4m
接道面:公道に約 6.89m
●引渡し/相談
●取引態様/仲介
周辺環境施設はこちらです↓br>
br>
地図クリック↓
問い合せ先
フリーダイヤル : 0120-326-146
担 当 : 西 原
携 帯 : 090-1077-8088
宅地建物取引業者
免許番号:大阪府知事(2)第53208号 


コメント & トラックバック
この物件に問い合わせをする